Ukládání projektu

Tato stránka používá cookies, pro správnou funkci stránky prosím sdělte svůj souhlas.

Bydlo
Přihlásit se Registrovat se
  • Realizace
    • Kuchyně
    • Obývací pokoj
    • Jídelna
    • Ložnice
    • Dětský pokoj
    • Šatna
    • Koupelna
    • Záchod
    • Pracovna
    • Předsíň / chodba
    • Schodiště
    • Sauna
    • Bazén
    • Zahrada
    • Zimní zahrada
    • Terasa / balkón
    • Altán / pergola
    • Dům / architektura
    • Dřevostavba
    • Srub / roubenka
    • Sklep / vinotéka
    • Plot
    • Zahradní kuchyně
  • Katalog firem
    • Architekt
    • Projektant
    • Interiérový designer
    • Kuchyňské studio
    • Koupelnové studio
    • Zahradní architekt
    • Zahradní jezírka
    • Venkovní kuchyně
    • Výrobce nábytku
    • Stolař / truhlář
    • Ploty a brány
    • Dřevostavby
    • Kamnář
    • Stavební firma
    • Bazénový specialista
    • Vizualizace
    • Zahradník
    • Fotograf
    • Kameník
    • Malíř
    • Ostatní
  • Magazín
    • Bydlení
    • Zahrada
    • Inspirace
    • Vaříme
  • search
atelier tektura
Architekt | Hlavní město Praha
E: havliksimkova@gmail.com
Poslat zprávu Sledovat
Zobrazení realizace 5669
Líbí se 0
Sdílení celkem
Facebook
Twitter

Panelákový byt

Vizualizace
https://mail.bydlo.cz/files/image/projects/2744/atelier-tektura_2744_22457_big.jpg
Bydlo.cz
213 41
https://mail.bydlo.cz/www/images/header-logo-02.png

atelier tektura

Architekt | Hlavní město Praha
E: havliksimkova@gmail.com
Poslat zprávu Sledovat

Sdílení celkem
Facebook
Twitter

Zobrazení realizace 5669
Líbí se 0

Základní informace o realizaci
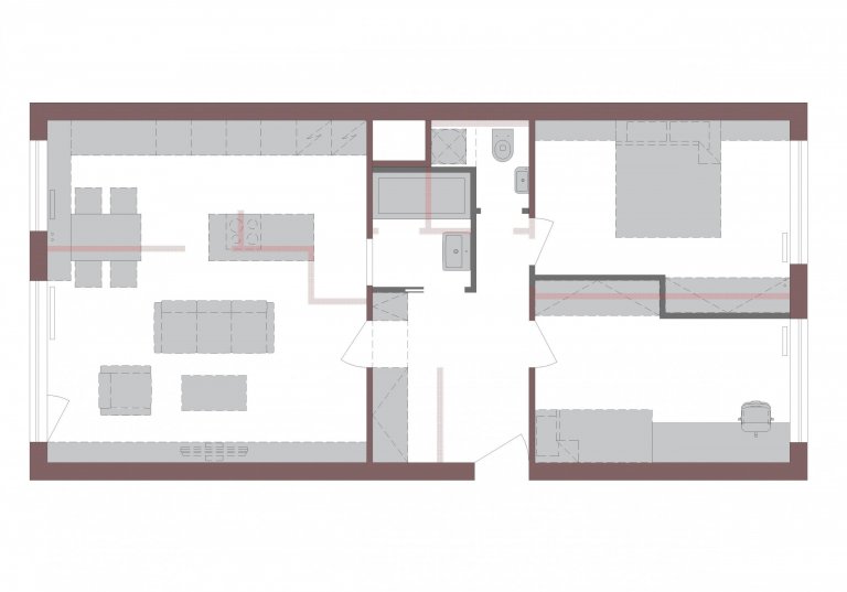
Změna dispozice a návrh interiéru panelákového bytu.
Číst více

Kategorie působnosti

Architekt

Projektant

Interiérový design


Regiony působnosti Hlavní město Praha
Změna dispozice a návrh interiéru panelákového bytu.

O realizaci

Změna dispozice a návrh interiéru panelákového bytu.

Obrázky

Změna dispozice a návrh interiéru panelákového bytu.
Přidat do alba
Změna dispozice a návrh interiéru panelákového bytu.
Přidat do alba
Změna dispozice a návrh interiéru panelákového bytu.
Přidat do alba
Změna dispozice a návrh interiéru panelákového bytu.
Přidat do alba
Změna dispozice a návrh interiéru panelákového bytu.
Přidat do alba
Změna dispozice a návrh interiéru panelákového bytu.
Přidat do alba
Změna dispozice a návrh interiéru panelákového bytu.
Přidat do alba
Změna dispozice a návrh interiéru panelákového bytu.
Přidat do alba
Změna dispozice a návrh interiéru panelákového bytu.
Přidat do alba
Změna dispozice a návrh interiéru panelákového bytu.
Přidat do alba
Sdílení celkem
Facebook
Twitter

Komentáře

Líbí se mi

Další realizace

Interiér bytu

Interiér bytu

0
5593
Sdílet
Rodinný dům

Rodinný dům

0
5735
Sdílet
Redesign interiéru základní školy

Redesign interiéru základní školy

0
5219
Sdílet
Revitalizace náměstí v Žluticích

Revitalizace náměstí v Žluticích

0
5399
Sdílet
Studie řešení Pankrácké pláně

Studie řešení Pankrácké pláně

0
5245
Sdílet
Skupina rodinných domů Praha - Úholičky

Skupina rodinných domů Praha - Úholičky

0
5113
Sdílet
Změna dispozice a návrh interiéru nájemního bytu Dejvice.

Změna dispozice a návrh interiéru nájemního bytu Dejvice.

0
5211
Sdílet
Nová dispozice rodinného domu

Nová dispozice rodinného domu

0
6100
Sdílet
Základní škola Praha 4

Základní škola Praha 4

0
5315
Sdílet
Přidat do alba
picture preview
Přidat do alba

Pro přidání do alba musíte přihlášený.
Přihlásit se  |  Vytvořit účet

Všimli jsme si, že blokujete reklamy

Příprava kvalitního obsahu je časově i finančně náročná. Abychom pro vás mohli i nadále připravovat zajímavé články, potřebujeme vám zobrazovat reklamy, díky kterým můžete stránky prohlížet zdarma. Prosíme o vypnutí blokování reklam, aby i do budoucna mohl být obsah našeho webu zdarma pro všechny.

adblock
O bydlení
  • Kuchyně
  • Obývací pokoj
  • Ložnice
  • Koupelna
  • Dům / architektura
  • Dřevostavba
Odběr novinek
Sledujte nás
Další informace
  • O nás
  • Bydlo programy
  • Jak se zapojit?
  • Uživatelské podmínky
  • Ochrana osobních údajú
  • Cookies
  • Redakce

Copyright © 2013 - 2026, Bydlo.cz

Registrace nového uživatele
info
info
Podařilo se načíst základní údaje. Vyplňte zbývající informace a dokončete registraci.
Po dokončení bude váš účet propojen se zvolenou sociální sítí.
*
*
*
info
*
*

Vložte obrázek ve formátu JPEG, PNG nebo GIF s rozměry alespoň 200x200px.

TIP: Obrázek můžete upravit – posuvníkem zvětšíte či zmenšíte, kliknutím myši a posunem upravíte pozici.

Profilové údaje

* info
info
* info
info

Doplňující údaje

*
*

Kontaktní údaje

*
*
*
*

Fakturační údaje

*
*
*
*

* Tyto položky jsou povinné

Přihlášení

Zapoměli jste heslo?

Nemáte účet? Zaregistrujte se.

Odeslat zprávu
Ahoj, posílám ti odkaz na inspiraci, která by tě mohla zajímat.
foto inspirace