Ukládání projektu

Tato stránka používá cookies, pro správnou funkci stránky prosím sdělte svůj souhlas.

Rodinný dům v jižní části Žilinské kotliny

Rodinný dům v jižní části Žilinské kotliny

Dvoupodlažní rodinný dům s garáží se nachází v obci Lietavská Svinná - Babkov, v části kněžská Lehota. Obec leží v údolí říčky Svinianka, v jižní části Žilinské kotliny. Ze svažitého pozemku na jižní hranici katastrálního území se otevírají výhledy na lietavské podhradí a protilehlý vápencový hřeben.

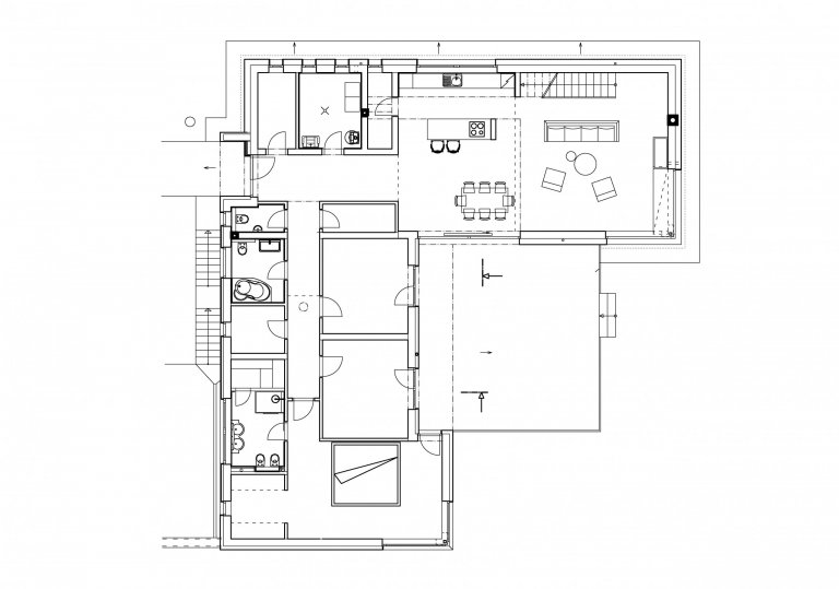
Dům je posunut k jižní hranici pozemku s výměrou téměř 1800 m2. Konfigurace původního terénu byla východiskem pro dvouúrovňové využití parcely. Garáž, zpřístupněná komunikací probíhající podél východní hrany parcely, tvoří podnož pro noční část domu. ELKOVÝ půdorys, který se rozvíjí na vyšší úrovni, je z východní části ohraničený vyšší, denní částí domu se sedlovou střechou. Ta zároveň tvoří pohledovou bariéru pro otevřený segment zahrady. Betonová terasa, "sevřená" oběma trakty domu, se otevírá na jihozápad. Výhled na okolní louky neruší žádní sousedé.

Příjemnou šedou patinu dřeva, použitého na fasádě denní části domu, střídají precizní monochromatické plochy nižšího traktu. Bezpresahová střecha a skryté žlaby nechávají vyniknout kompozici dvojice bloků. Prostorový koncept je obohacen o převáží zónu obývacího pokoje, otevřenou na celou výšku krovu.

Rodinný dům v jižní části Žilinské kotliny
Foto: Richard Köhler

Konstrukce a materiály

Stavbu zděnou z keramických tvarovek doplňují železobetonové stěny v suterénu a sloupy v obývacím pokoji (na úrovni přízemí). Monolitické železobetonové stropy vyztužují v části vjezdu do garáže a při terase železobetonové průvlaky. V patrové části domu probíhá v úrovni stropu ztužující věnec. Další věnec vede pod pozednicemi krovu a přechází do štítové stěny.

Nosnou konstrukci sedlové střechy se skonem 40 ° tvoří vaznicový tesařský krov s vrcholovou věznicí (ocel 2U200) a pozednicemi 140/140. Prostor nad obývacím pokojem (přibližně uprostřed rozponu) překlenuje rám složený z ocelové krokve a ocelové vodorovné kleštiny, spolu se sloupkem nesoucím vrcholovou věznici. Na krokve 100 / 200mm (střešní vazníky) je přes kontralatě 40/50 mm přichycena difúzně otevřená pojistná hydroizolační fólie. Kontralatě a řídké bednění z desek 32 / 100mm slouží jako podkonstrukce pro krytinu Ruuki Classic. Prostor pod plechovou krytinou je provětrávaný.

Kontaktní zateplovací systém s minerální vlnou je ze strany exteriéru ukončený škrábanou omítkou se zrnitostí 1,5 mm. Všechny vnitřní povrchy jsou omítnuté. Patrová část domu je obložena svislými dřevěným látkování. Mezi latěmi a zateplením je provětrávaná dutina.

Štítky: rodinný dům
Foto: Richard Köhler
Zdroj: www.mda.sk

Další články

Postavili jste dům, rekonstruovali byt nebo máte hezkou zahrádku a rádi byste se pochlubili?

Nejnovější realizace

Garsonka v Brně

Koupelna EPOXY

KUCHYNĚ S MAXIMÁLNÍM VYUŽITÍ PROSTORU

Dětský pokoj pro milovnici filmu a Harryho Pottera

Jak dosáhnout elegance a harmonie v interiéru s omítkou Claywall?

Interiér Křižíkova

Sledujte nás

Nejčtenější články

Podzimní dekorace

Neuvěřitelně rychle rostoucí živý plot

Luxusní maringotka

Vyrobte si adventní věnec

Renovace komínů pomocí unikátní omítky Izonil

Cena za projekt rodinného domu

Všimli jsme si, že blokujete reklamy

Příprava kvalitního obsahu je časově i finančně náročná. Abychom pro vás mohli i nadále připravovat zajímavé články, potřebujeme vám zobrazovat reklamy, díky kterým můžete stránky prohlížet zdarma. Prosíme o vypnutí blokování reklam, aby i do budoucna mohl být obsah našeho webu zdarma pro všechny.

adblock