RD Krameriova - foto 01

O realizaci

Objekt je navržen jako jednopodlažní nepodsklepený z systému sendvičových panelů EUROPANEL, omítaný, z části obložený plechem a dřevem. Zelená střecha je řešena jako pultová s mírným sklonem, lemovaná atikou, z čela a jedné strany domu s výrazným přesahem kryjícím část terasy a příjezdovou cestu (příležitostné kryté stání).

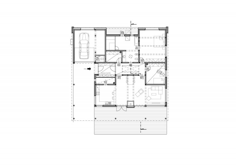
Samotný objekt tvoří hlavní obytná část domu obdélníkového tvaru orientovaná v ose sever - jih a k ní ze západu přidružená půdorysně menší obdélníková část s garáží. Takto vzniklý půdorys ve tvaru písmene L zakrývá střecha téměř čtvercového tvaru (16,8x17,2). Hlavní průčelí domu délky 12,85m je orientováno na jih a je z velké části prosklené s ohledem na prosluněnost vnitřních prostor a solární zisky v zimním období. Před toto průčelí přesahuje do vzdálenosti cca 2,5m střecha, která tak z poloviny kryje přilehlou terasu. Terasa se rozkládá podél celé délky čelní fasády v šířce 5,0m. Přes západní fasádu hlavní obytné části podobně jako přes jižní přesahuje střecha, a to tak, že hrana střechy navazuje na západní obvodovou stěnu garážového křídla. Přesahující části střechy jsou neseny dřevěnými sloupy. Na východní straně střecha přesahuje jen částečně a je stejně jako z jihu a západu ukončena atikou, ze severu pak přechází rovnou ve svislou obvodovou stěnu, vyjma podloubí s malou terasou ve středu severní stěny. Do obytného prostoru se vstupuje ze západu. Na poměrně velké zádveří navazuje hala, ze které jsou pak přístupné všechny obytné a pomocné prostory. Směrem k severu se jedná o technickou místnost, koupelnu s WC a saunou, ložnici, k východu pak je to pokoj pro hosta a směrem na jih obývací pokoj s kuchyňským koutem a spíží. Z prostoru koupelny je přístupná zadní terasa, z obývacího pokoje pak terasa přední.

Obrázky

Fotograf: Z archivu PÍSEK SEYČEK ARCHITEKTI

Komentáře

Další realizace