V době svého vzniku byl v prvním patře secesního činžovního domu jeden byt. V éře komunismu brutálně a necitlivě rozdělen na tři jednotky. Klient koupil tato…

O realizaci

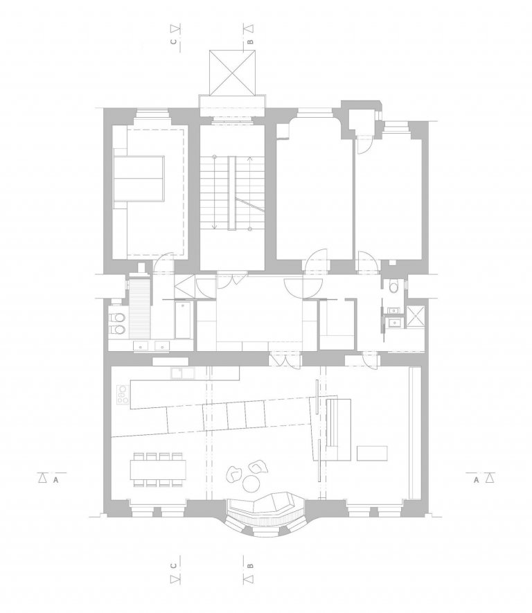
V době svého vzniku byl v prvním patře secesního činžovního domu jeden byt. V éře komunismu brutálně a necitlivě rozdělen na tři jednotky. Klient koupil tato tři torza a stanovil jednoduché zadání: vytvořit opět jeden fungující celek, soudobé bydlení v symbióze s původním jádrem.

 

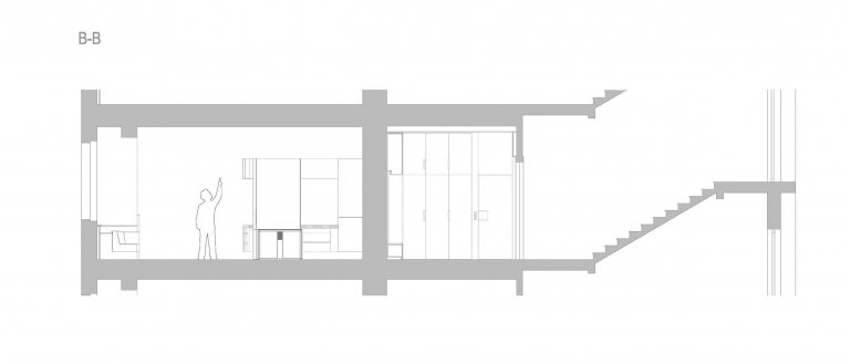
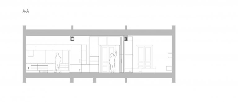
Cílem konceptu bylo zachovat hodnotné části historického originálu a minimem zásahů vytvořit nové kvalitní prostředí pro bydlení na hranici soudobého a minulého. Jednoduchá dispoziční úprava umožnila dosáhnout současných standardů bydlení v celém bytě. Každá z částí stávajícícho konstrukčního trojtraktu je využita pro jinou funkci. Na východ jsou orientovány klidové části - ložnice a pokoje se svoji intimitou. Uprostřed kotví hutný servisní „motor“, obsahující koupelny, toaletu, technickou místnost a všepropojující dřevěnou vstupní halu. V západní části umožňuje probourání tří pokojů do jednoho velkorysého obytného prostoru vložit novou nezávislou prostorovou strukturu - Hada.

 

Had proplouvá secesním obalem, nechává mu dýchat a svým polotransparentním tělem dává vzniknout polopropojeným subprostorům a mikrosvětům. Ocelová kostra opláštěná pískovaným plexisklem obsahuje všechny potřebné funkce - kuchyni, sezení, úložné prostory, kompletní osvětlení, lednici, vinotéku, rozvody elektro, vody, vzduchotechniky, posuvné stěny pro oddělení části s televizí na separátní domácí kino... Díky tomu nebylo téměř nutné zasahovat během přestavby do stěn, dřevěných obložení a stropů s krásnými řemeslnými detaily.

Celková nálada se mění s denní i roční dobou podle toho, jaké světlo právě na objekt dopadá, kolik ho prostupuje dále či se odráží, kde jak a čím je had naplněn. Při pohybu prostorem se mění také dojmy - neustále se otvírají a zavírají různé průhledy, střídají se světelné nálady, mění se výškové i půdorysné souvislosti. Entita z přítomnosti tak levituje uprostřed historického kontextu a tvoří s ním synergický celek.

Obrázky

Fotograf: PROGRES ATELIER

Komentáře

Další realizace